Harmonie Boutique Hotel

Project overview

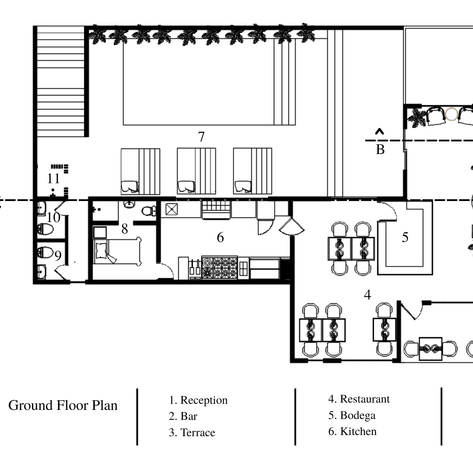
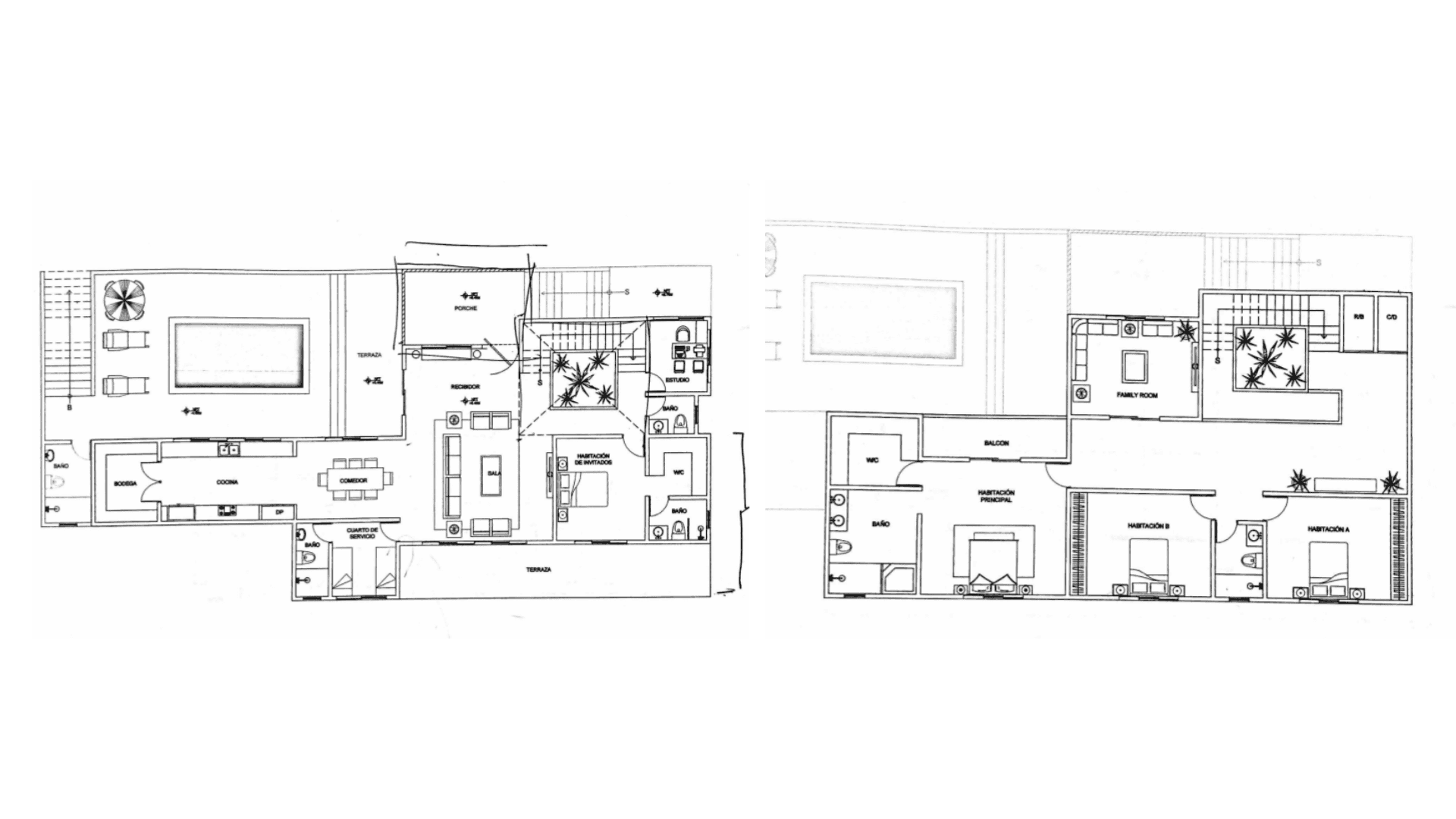
Harmonie is a forthcoming boutique hotel set to rise on a 3,000-square-meter site in the peaceful area of Arroyo Manzano, Jarabacoa, Dominican Republic. Designed to offer an exclusive and refined experience, the hotel will accommodate up to ten guests across five elegant rooms, including a Honeymoon Suite, two Junior Suites, and two Deluxe Rooms.

Plans include an à la carte restaurant featuring a fusion of Mediterranean and local cuisine, complemented by a forest-view terrace and a bar serving premium beverages. Harmonie aims to become a serene escape that blends high-end hospitality with the natural beauty of its surroundings.

This future development is envisioned as a destination where guests can unwind in a tranquil atmosphere while enjoying personalized, 5-star service.

My sketches

Details

The design approach aims to achieve a refined Colonial aesthetic by blending classical European architectural elements with locally sourced materials and craftsmanship. The objective is to create a timeless, contextually rich interior that balances elegance and comfort through natural textures, handcrafted furnishings, and a warm, muted palette.

Results

  • Minimal removal of original structural walls to preserve the building's character while optimizing spatial functionality.

  • The design ensures sufficient spatial capacity to accommodate the intended occupancy levels comfortably.

  • Strategically placed new openings enhance natural light penetration and maximize exterior views.

Atelier Aurora

Santo Domingo, DR | Port au Prince, HT | Florida, US

(829) 537-2145 | (509) 3166 5510 | (561) 325-7587

jeananaise28@gmail.com

© Anaïse Jean, 2025